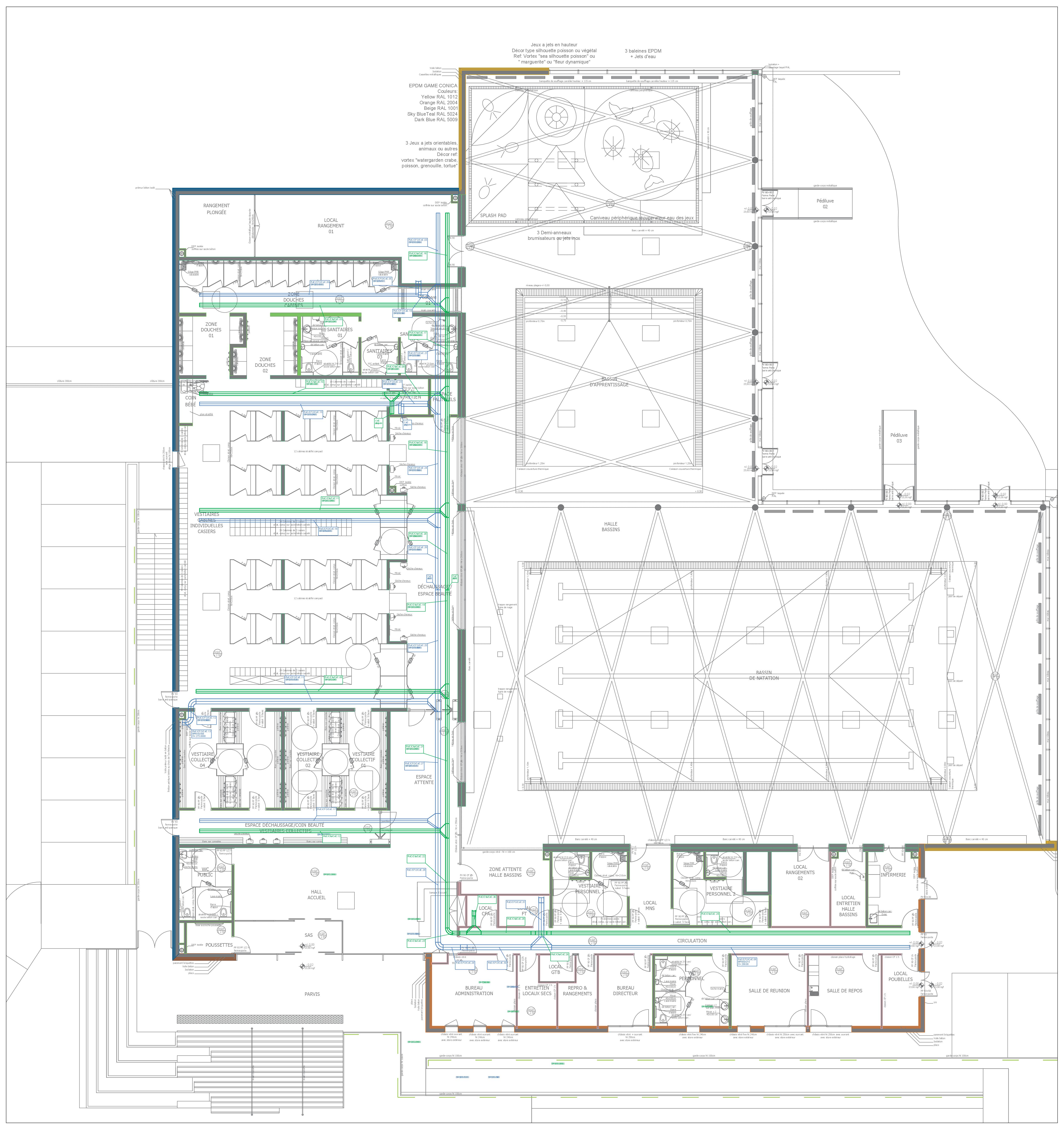
Courants Forts (CFO)